木更津市高砂売倉庫
令和5年築の築浅倉庫


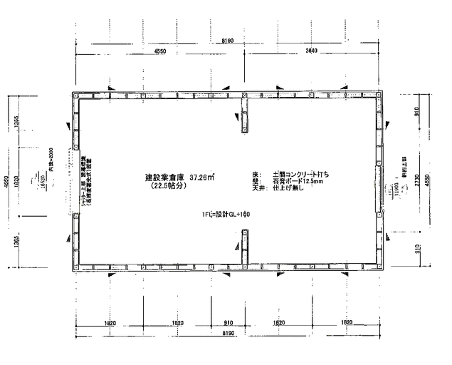
※図面はお問合せください。
基本情報
| 価格 | 1,280万円 |
|---|---|
| 所在地 | 千葉県木更津市高砂1丁目 |
| 交通 | JR内房線 木更津駅 徒歩10分 |
土地
| 地積 | 地積公募 | 90.74㎡ |
|---|---|---|
| 地積実測 | ||
| 権利 | 所有権 | |
| 地目 | 宅地 | |
| 道路 | 北西 公道5.0m |
建物
| 構造 | 木造平家 |
|---|---|
| 種類 | 倉庫 |
| 建物面積 | 37.26㎡ |
| 築年月 | 2023年6月 |
設備
| 水道 | 公営水道 | 下水 | 公共下水 |
|---|---|---|---|
| 駐車場 | あり | ||
法令上の制限
| 都市計画 | 市街化区域 | ||
|---|---|---|---|
| 用途地域 | 一種住居 | ||
| 建蔽率 | 60% | 容積率 | 200% |
その他
| 現況 | 空 | 引渡 | 相談 |
|---|---|---|---|
| 取引態様 | 媒介 | ||