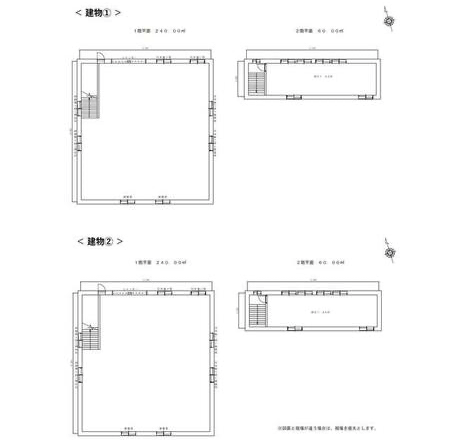
東所沢売倉庫
2階建て2棟倉庫
天井高は2.5m以上
トイレは各棟設置




※図面はお問合せください。
基本情報
| 価格 | 1億9,800万円 |
|---|---|
| 所在地 | 埼玉県所沢市東所沢4丁目 |
| 交通 | JR武蔵野線 「東所沢」駅 徒歩22分 |
土地
| 地積 | 地積公募 | 895.26㎡ |
|---|---|---|
| 地積実測 | ||
| 権利 | 所有権 | |
| 地目 | 宅地 | |
| 道路 | 2方路 |
建物
| 構造 | 鉄骨造2階建 |
|---|---|
| 種類 | 倉庫 |
| 建物面積 | 600.00㎡ |
| 築年月 | 1992年7月 |
設備
| 水道 | 公営水道 | 下水 | 公共下水 |
|---|---|---|---|
| 駐車場 | あり | ||
法令上の制限
| 都市計画 | 市街化区域 | ||
|---|---|---|---|
| 用途地域 | 一種住居 | ||
| 建蔽率 | 60% | 容積率 | 200% |
その他
| 現況 | 空 | 引渡 | 相談 |
|---|---|---|---|
| 取引態様 | 媒介 | ||